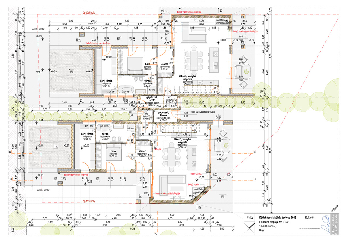
Adott egy festői, patakparti környezet, közel az erdő és a város is. A telek egy viszonylag méretes, 1425 m2 alapterületű, több mint 30 méter széles, enyhe északkeleti lejtésű saroktelek, egyik felén gyalogos úttal.
Előzmények
Ez az extra szélességű telek korábban egyesítve lehetett kettőből, mivel házszáma is kettő van. A Szabályozási Terv készítésekor viszont a gondos várostervezők azt akarták elérni, hogy erre a széles telekre ne akarjon egy átlagos, a telek minden lehetséges beépíthető m2-t kifacsaró építtető, beruházó egynél több lakóházat építeni.
Ennek érdekében erre az egy telekre külön készítettek egy szabályozást, mely egyrészt csak egyetlen épületet enged, másrészt nagyobb oldal és hátsókertet ír elő, mint amit az Országos Településrendezési és Építési Követelmények (OTÉK) előír. Korlátozva így az építési helyet, mely a helyszínrajzon narancs tengelyvonallal jelölt.

Koncepció
Az építtető – mit sem sejtve a fondorlatos szabályozásról – meglátta az extra szélességű telekben rejlő lehetőséget, megvette és megbízást adott nekem egy kétlakásos, modern, minimál lakóház tervezésére, magának és egyet a fiainak, esetleg értékesítés céljából.

Kihívás
Ráadásul határozott elképzelésekkel rendelkezett, küldött több gyönyörű külföldi, holland és egyéb high-tech házakat, hogy ilyet szeretne.

Ki is választottuk a legjobban kinézőt, mely a terv alapjául szolgált és melynek utcai, hatalmas konzoljai alatt elfér egységenként két autó, mintegy garázsként, felette pedig terasz. Hiába a méretes telek, ez a ház a hatalmas konzolokkal és előtetőkkel, roppant pazarlóan bánt a hellyel, mivel a túlságosan kilógó részek is beleszámítanak a beépítésbe. Teljesen más, racionalizált, átvariált alaprajzzal is csak cipőkanállal fért az építési helyre, többlet munkaórákat adva így az építésznek…
Tetőszerkezet magas és lapostető kombinációja, hisz a területen kötelező a magastető.

A házak hasznos alapterületei nem túl nagyok, a nappalin kívül 3 hálószoba található bennük.

Belterei viszont ott vannak:



Jelenleg a ház további racionalizáláson megy keresztül, hogy ne legyen olyan csillagászati összeg megépíteni: Csökkentem, keskenyítem a széles üvegfelületeket, csökkentem a szabadtéri tetőkinyúlásokat, ahol az nem megy a gépkocsibeálló rovására, illetve az épület vasbeton koporsófödém helyett fafödémet kap.